| Schemes/Drawings/Floor plans |
| About Lusio Architects |
| About Vitosha Nature Park |
Design: Lusio Architects
Area: 13,8 m2
Year: 2017
Location: Vitosha Nature Park, Bulgaria
Mountain shelters serve as protection for climbers during severe weather conditions. However, a Bulgarian project team found that many shelters were destroyed, putting climbers at risk. As a winning proposal in the "Architecture of 2050" competition, this innovative small lightweight aluminum modular prefab house addresses this critical problem through a combination of sustainability, materiality and technology.
"If the shelter is to withstand the weather, it must protect itself first."
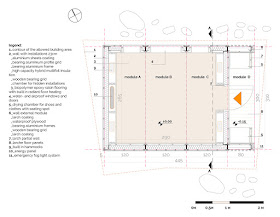
Designed by Lusio Architects, this small lightweight aluminum modular prefab house consists of four separate aluminum modules. The modules can be delivered by helicopter and then assembled on site. When set up, the shelter appears "hidden" on the mountainside to "not attract unwanted visitors". In case of bad weather, the shelter becomes a beacon, "with lights and sound that make it extremely easy to find, even in the thickest fog."
There are several elements integrated into the small lightweight aluminum house to assist in the safety and rescue of climbers. A direct video connection to the mountain rescue team is automatically activated when someone enters the shelter, and a floor heating system is powered by the solar and wind energy captured and stored by this small modular house. A system of hammocks is also included on the walls of the shelter to provide multiple resting spaces while saving space.
Based on weather conditions, the lightweight prefab aluminum house changes modes to ensure the safety of the people inside. The modes include "FIND ME Mode", "RESCUE ME Mode" and in periods of better weather, "RELAX Mode".
Description by architects
Three factors from the deep-dive research formed the shelter’s design:
it has to be smart and hidden when not needed, as many of the shelters in Bulgaria are destroyed by vandalism
it has to shelter people in extreme weather conditions as temperatures in Vitosha can drop up to 20 degrees in one hour, which makes the mountain dangerous and often times underestimated
situated in Vitosha National Park, it has to be light and sustainable, with a minimal footprint
Design solutions
The modular lightweight aluminum house has to be smart in order to protect the mountaineers, but also itself from unwanted visitors.
Via aluminum coating it reflects its ambiance and remains hidden in good weather. In case of bad weather conditions, the shelter transforms into a beacon, with lights and sound that make it extremely easy to find even in the thickest of fogs. In this mode of operation, a person walking inside would automatically activate the floor heating and video connection with the mountain rescue service. The low-positioned windows would invite him to sit on the warm floor and in case that the group is large, there are integrated hammocks into the walls which are easily pulled out. Also, water and shoe-drying containers are placed at the entrance.
The lightweight aluminum modular house is sustainable and produces energy through solar panels and a wind turbine and stores it into a high-capacity battery; its use is prioritised only for emergency cases and critical life support. Sensors for weather conditions and occupancy govern the shelter’s different modes. If threatening human behaviour is detected, a signal is immediately sent to the local mountain service and a video connection is established.
Its body is extremely lightweight and is inspired by the aeroplane industry. In order to have a minimal footprint, its modules can be transported via helicopter and assembled on-site.
Schemes/Drawings/Floor plans
About Lusio Architects
lusio helps people experience and express their best selves through physical space. Our approach is human-centered, interdisciplinary and based on co-creation.
What does that mean?
lusio excels in the design of spaces with greater public impact: schools, universities, kindergartens, creative offices, coworking spaces, squares, playgrounds, shelters, parks.
lusio also designs installations, interior elements, loves writing toolkits, articles, giving lectures, giving advice to people as well as other fellow designers.
What’s lusio like?
We are optimistic all the way: we believe in the human capacity to be better no matter what. We tackle even difficult challenges with smiles on our faces. We love to be active, we love having fun and involving others in our creative sprints.Our curiosity makes us an open system: we come with questions, not with answers. We dig deeper to discover unmet needs.
We value efficiency in the design process and we respect ours and our clients’ time.
We are energized by people who are truly motivated and willing to change their environment in a meaningful way, understanding that this process takes more time and active effort.
| hello@lusio.bg | |
| Website | https://www.lusio.bg/ |
About Vitosha Nature Park
| Address | ul. "Antim I" 17, 1303 Pette Kyosheta, Sofia, Bulgaria | |
| Phone | +359 2 989 5377 | |
| park@park-vitosha.org | ||
| Website | https://park-vitosha.org/ |
Small Lightweight Aluminum Modular Prefab House / Mountain Shelter









